LuxuryQuincy.com > Quincy > 144-152 Franklin St

LRG Boston

(617) 233-5800

355 Boylston St

Boston, Ma 02116

144-152 Franklin St

Quincy, MA

Property Description

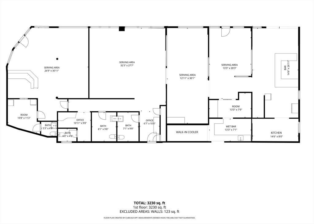
Real estate for sale only; business not included. Free-standing brick commercial building currently used as a restaurant at the Quincy/Braintree connector, offering excellent visibility and strong traffic counts. Imagine the possibilities—restaurant, bar, café, or potential roof deck expansion (buyers to perform all due diligence). Prime location with convenient access to major routes, public transportation, and surrounding neighborhoods. Please do not enter the building or disturb the tenant or customers without a scheduled appointment. All showings must be arranged in advance. Buyers and their agents to verify all information and conduct their own due diligence.

offered at

$1,800,000

  • MLS #: 73505899
  • Lot Size: 4,118 sqft Convert

Additional Details

Zip Code: 02169

Contact: LRG Boston at (617) 233-5800

LuxuryQuincy.com

355 Boylston St. Boston, MA 02116

Map

Photos